LÔ PHỐ-MỘC CHÂU-SƠN LA
- Chủ Đầu Tư: Anh Hải - Chị Nhung
- Địa Điểm: Mộc Châu - Sơn La
- Chủ Trì: KTS Nguyễn Quốc Giảng
- Hoàn Thành: 2020
Công trình Nhà Lô Phố Mộc Châu cách trung tâm thị trấn Mộc Châu khoảng 1km, công trình là nhà ở của một cặp vợ chồng trẻ kinh doanh ô tô tại Mộc Châu, anh chị có Showroom ngay bên cạnh. Như bao công trình nhà Lô Phố khác công năng bên trong của ngôi…
Công trình Nhà Lô Phố Mộc Châu cách trung tâm thị trấn Mộc Châu khoảng 1km, công trình là nhà ở của một cặp vợ chồng trẻ kinh doanh ô tô tại Mộc Châu, anh chị có Showroom ngay bên cạnh.
Như bao công trình nhà Lô Phố khác công năng bên trong của ngôi nhà cũng bao gồm các không gian sinh hoạt chính của gia đình .
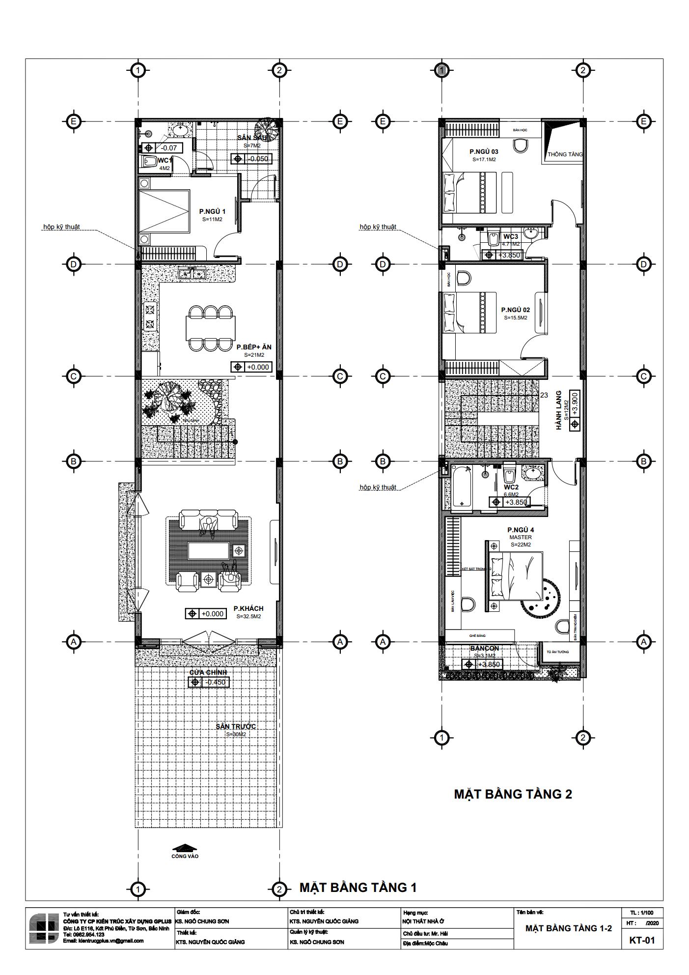
Tầng 1 với Phòng Khách, P. Bếp và Ăn, một phòng ngủ nhỏ dành cho khách tại tầng 1, với cầu thang và tiểu cảnh dưới gầm tạo điểm nhấn cho không gian liên thông giữa phòng khách và phòng bếp, hành lang lưu thông.
Tầng 2 được bố trí 3 phòng ngủ, với hai phòng ngủ nhỏ cho các con sử dụng vệ sinh chung của tầng, 01 phòng ngủ Master rộng phía mặt tiền có WC khép kín tiêu chuẩn với bồn tắm, vách tắm kính, lavabo sang trọng, phòng ngủ tách riêng hệ tủ thay đồ, băng ghế nhìn ra ban công rất đẹp.
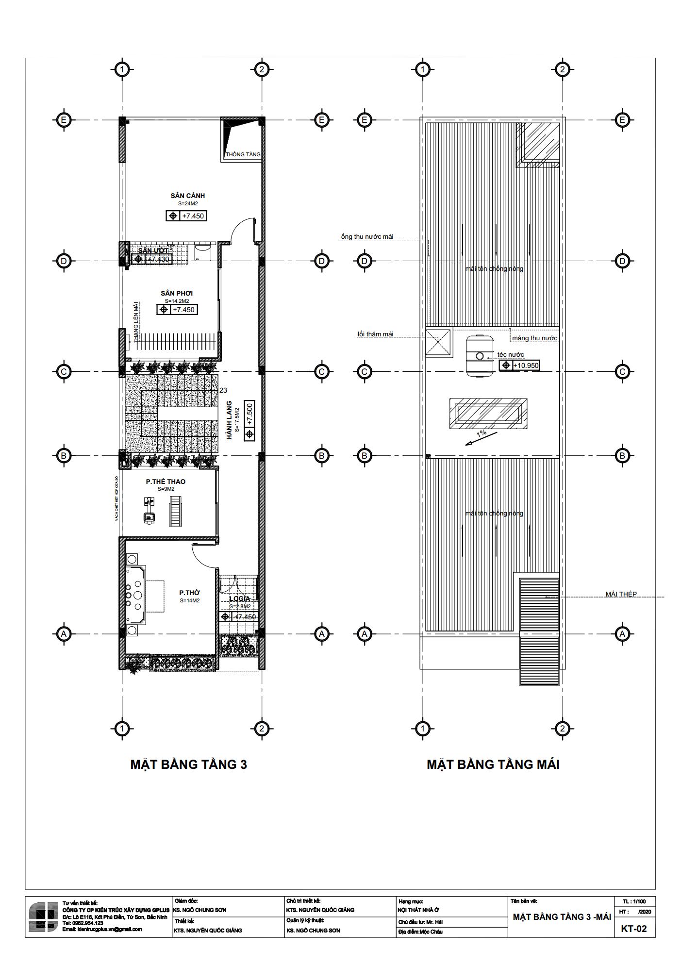
Tầng 3 là không gian phòng thờ, phòng tập thể thao, phòng giặt phơi và không gian sân cảnh.
