Mẫu thiết kế 2 tầng ở Mộc Châu – Sơn La
- Công trình: Anh Hưng - chị Hiền
- Địa điểm: Mộc Châu - Sơn La
Mẫu thiết kế nhà phố 2 tầng ở Mộc Châu – Sơn La mang dáng dấp của những ngôi nhà có phong cách hiện đại là một trong những ý tưởng thiết kế độc đáo hiện đang được rất nhiều khách hàng ưa chuộng. Thiết kế ngôi nhà này khá đơn giản nhưng khi phối trong…
Mẫu thiết kế nhà phố 2 tầng ở Mộc Châu – Sơn La mang dáng dấp của những ngôi nhà có phong cách hiện đại là một trong những ý tưởng thiết kế độc đáo hiện đang được rất nhiều khách hàng ưa chuộng. Thiết kế ngôi nhà này khá đơn giản nhưng khi phối trong tổng thể kiến trúc lại rất đẹp.


Phương án mặt bằng công năng của nhà 2 tầng được thiết kế mang phong cách kiến trúc hiện đại, gọn gàng. Mặt bằng tầng một với thiết kế sảnh chính, phòng khách, phòng bếp, 2 phòng ngủ và 2 WC.Thiết kế mặt tiền với 2 cửa, cửa chính dẫn vào phòng khách và cửa phụ đi qua garage dẫn vào phòng bếp phù hợp với nhu cầu sử dụng khác nhau của gia đình. Phòng khách được thiết kế rộng tới hơn 25m2 do căn phòng này được tận dụng để làm không gian phòng khách. Phía sau có sân vừa kết hợp trồng cây xanh vừa là chỗ thư giãn.

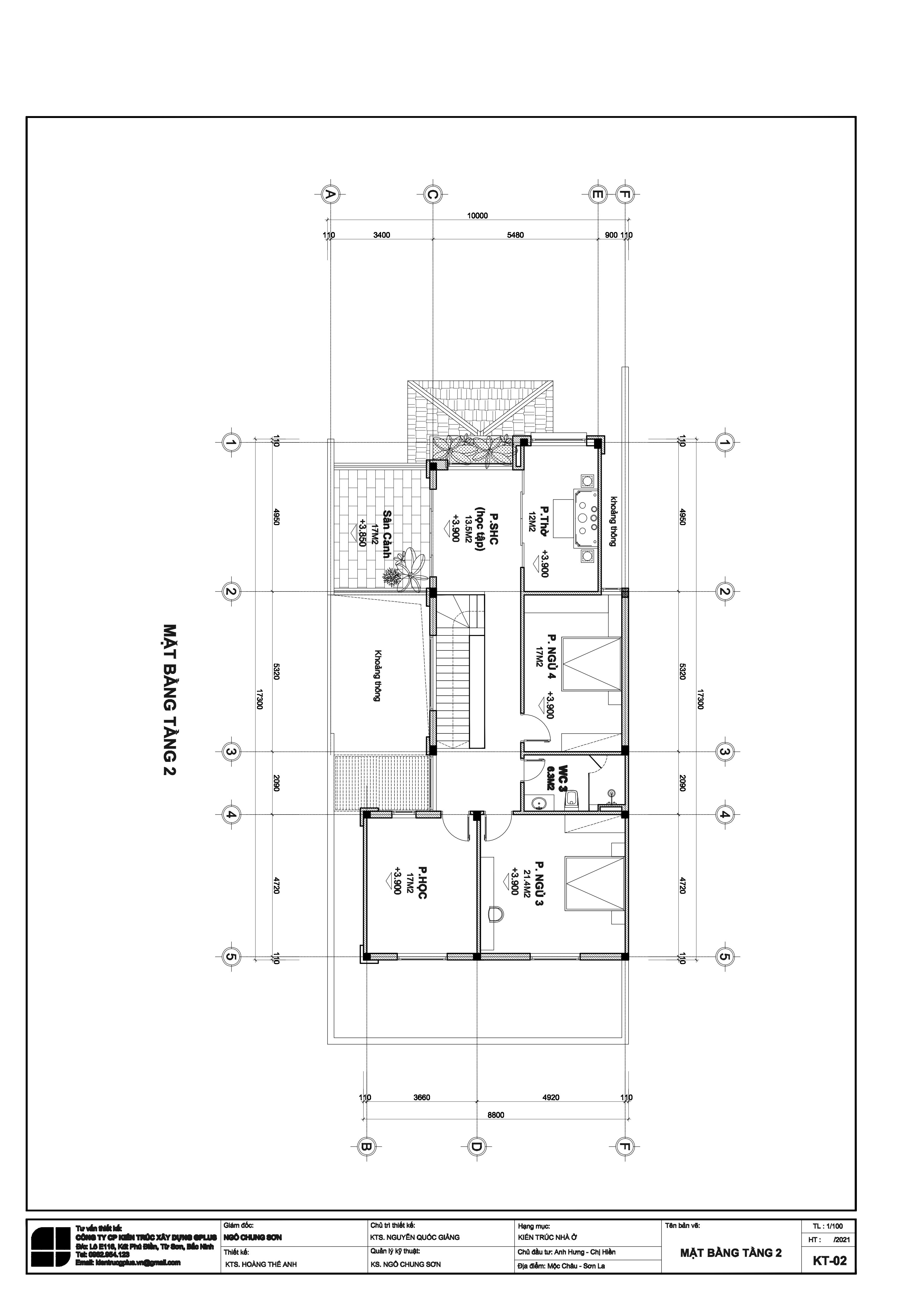
Mặt bằng công năng của tầng 2 tại nhà 2 tầng hiện đại được thiết kế với các phòng chức năng sau: Phòng sinh hoạt chung, phòng thờ,2 Phòng ngủ + WC,phòng học, sân cảnh bên trên garage. 2 phòng ngủ tại tầng 2 có diện tích sử dụng tương đối phù hợp với nhu cầu sử dụng của các thành viên trong gia đình, tuân thủ được không gian nghỉ ngơi riêng. Mỗi phòng đều có cửa sổ và hướng view đẹp đảm bảo mang đến sự thoải mái, tiện nghi nhất. 
