Mẫu thiết kế hotel – Bắc Giang
Kiến trúc khách sạn nổi lên với những sự phóng khoáng, đơn giản trong đường nét, bố cục

Kiến trúc khách sạn với phong cách hiện đại thường được áp dụng với những công trình khách sạn có diện tích đất xây dựng nhỏ. Trong đó, các mẫu kiến trúc khách sạn mini với chất lượng 1 sao đến 2 sao lựa chọn xu hướng hiện đại nhiều hơn cả. Với phong cách này, các đường nét thiết kế được phủ lên sự sang trọng, trang nhã mà không quá màu mè, rườm rà. Không gian tuy không quá nổi bật nhưng bù lại rất nhiều người lại ưa chuộng. Các mẫu thiết kế này vừa dễ dàng thi công, thời gian rút ngắn mà giá thành còn tiết kiệm hơn so với những phong cách khác.
Trong phong cách hiện đại, kiến trúc khách sạn nổi lên với những sự phóng khoáng, đơn giản trong đường nét, bố cục. Thậm chí nhiều thiết kế còn không đặt nặng quá nhiều về vấn đề đối xứng. Điều này có thể mang đến cho du khách lưu trú tại khách sạn sự thoải mái, thư giãn nhất. Tuy diện tích không được vuông vắn nhưng với công trình nhà anh Sơn ở Đông Hương – Nhan Sơn – Yên Dũng – Bắc Giang thì đây không còn là trở ngại đối với các kiến trúc sư của Kiến trúc G+.
Với thiết kế mặt tiền đơn giản nhưng sang trọng và hiện đại, cùng với bố cục bên trong hợp lý luôn tạo sự hài lòng của gia chủ.

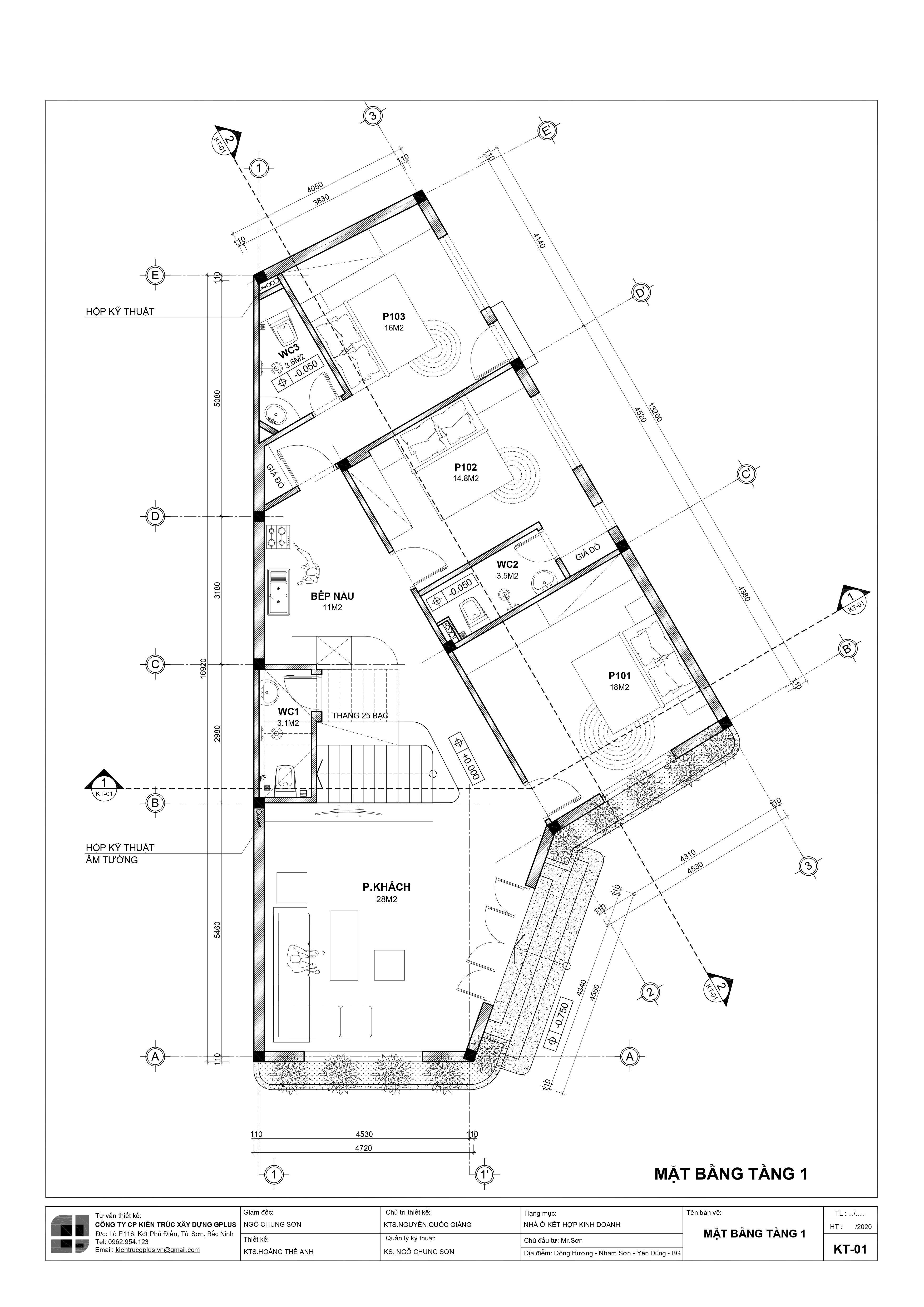
Mặt bằng tầng 1

Mặt bằng tầng 2

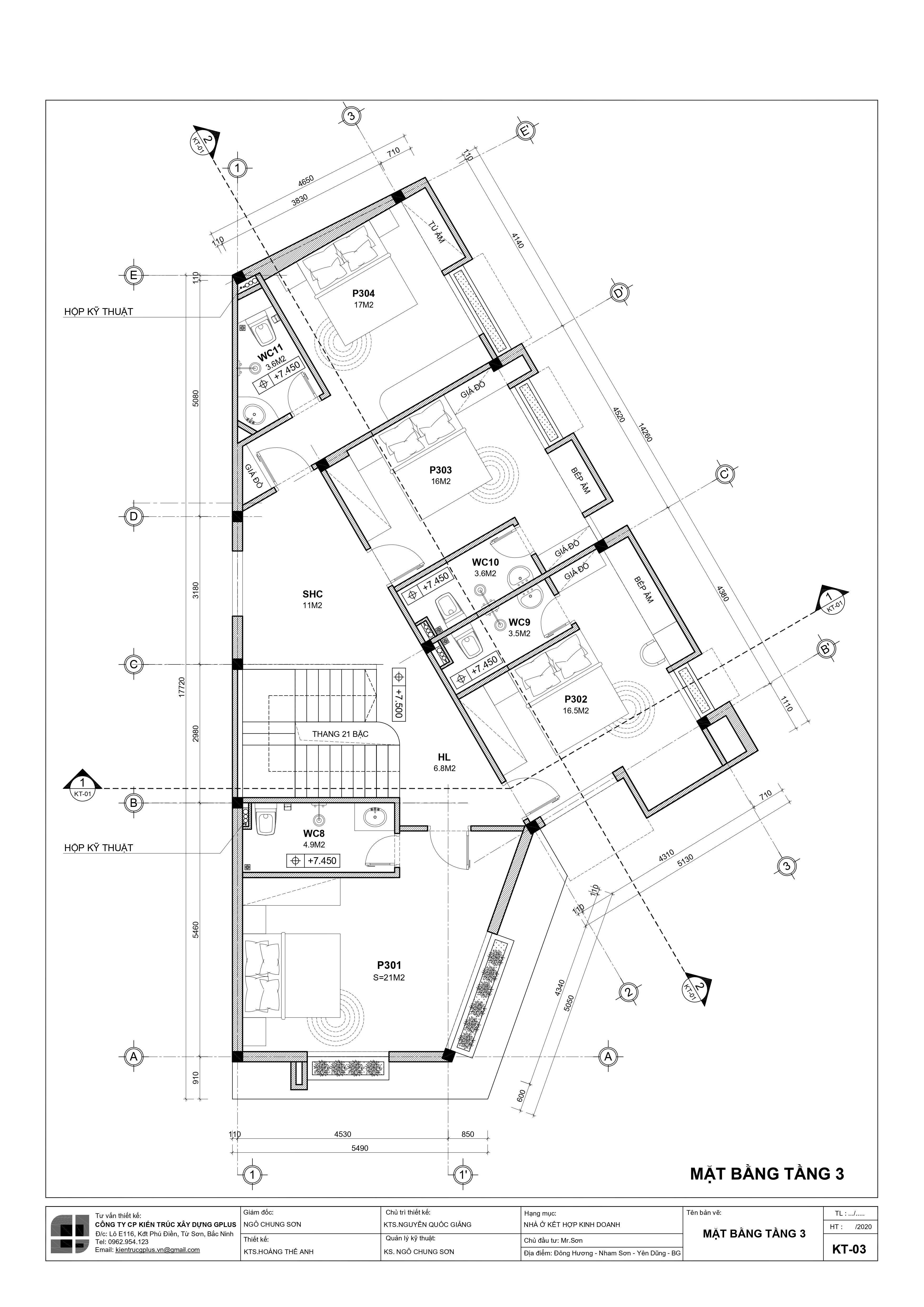
Mặt bằng tầng 3

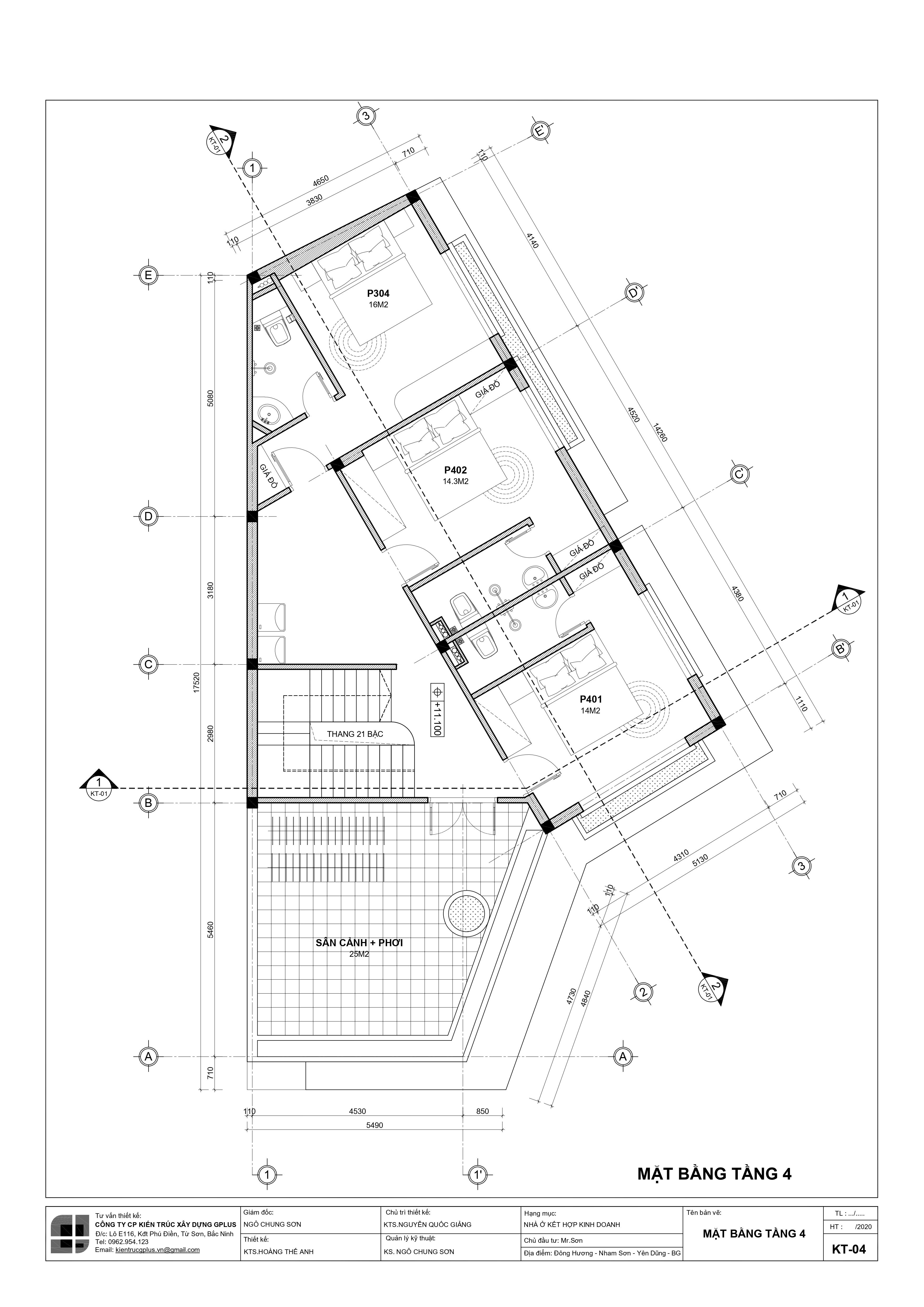
Mặt bằng tầng 4

Mặt bằng tầng mái
Hình ảnh công trình




