Nhà 3 Tầng – Tân Hồng – Từ Sơn
- Chủ Đầu Tư: Anh Linh
- Địa Điểm: Tân Hồng - Từ Sơn - Bắc Ninh
- Chủ Trì: KTS Nguyễn Quốc Giảng
- Hoàn Thành: 2020
Nhà 3 Tầng Lô Phố tại Phường Tân Hồng, Thị Xã Từ Sơn được xây dựng trên lô đất méo cả hai phía trước và sau nhà. Các KTS đã khéo léo loại bỏ phần méo đó, sử dụng cho các mục đích công năng khác, từ đó không ảnh hưởng tới các không gian…
Nhà 3 Tầng Lô Phố tại Phường Tân Hồng, Thị Xã Từ Sơn được xây dựng trên lô đất méo cả hai phía trước và sau nhà. Các KTS đã khéo léo loại bỏ phần méo đó, sử dụng cho các mục đích công năng khác, từ đó không ảnh hưởng tới các không gian chức năng chính của nhà.
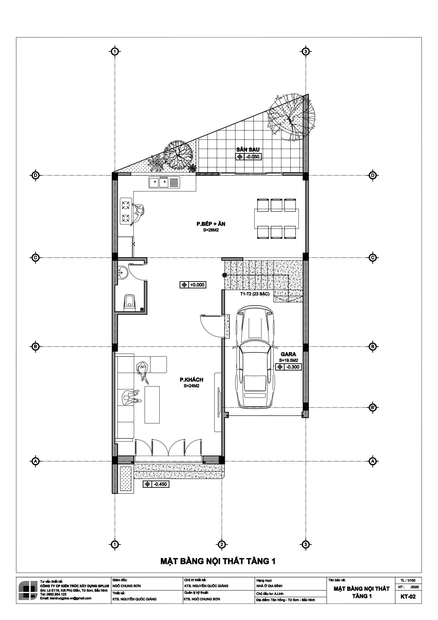
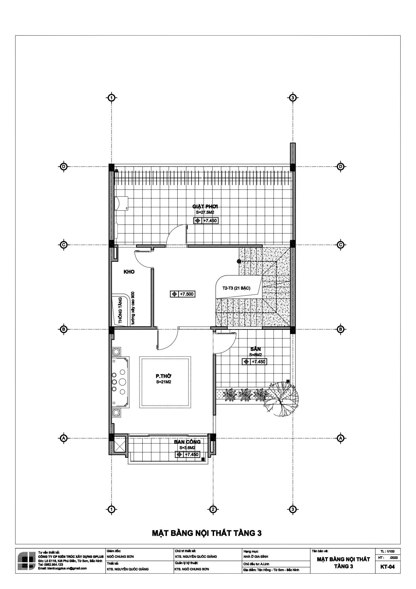
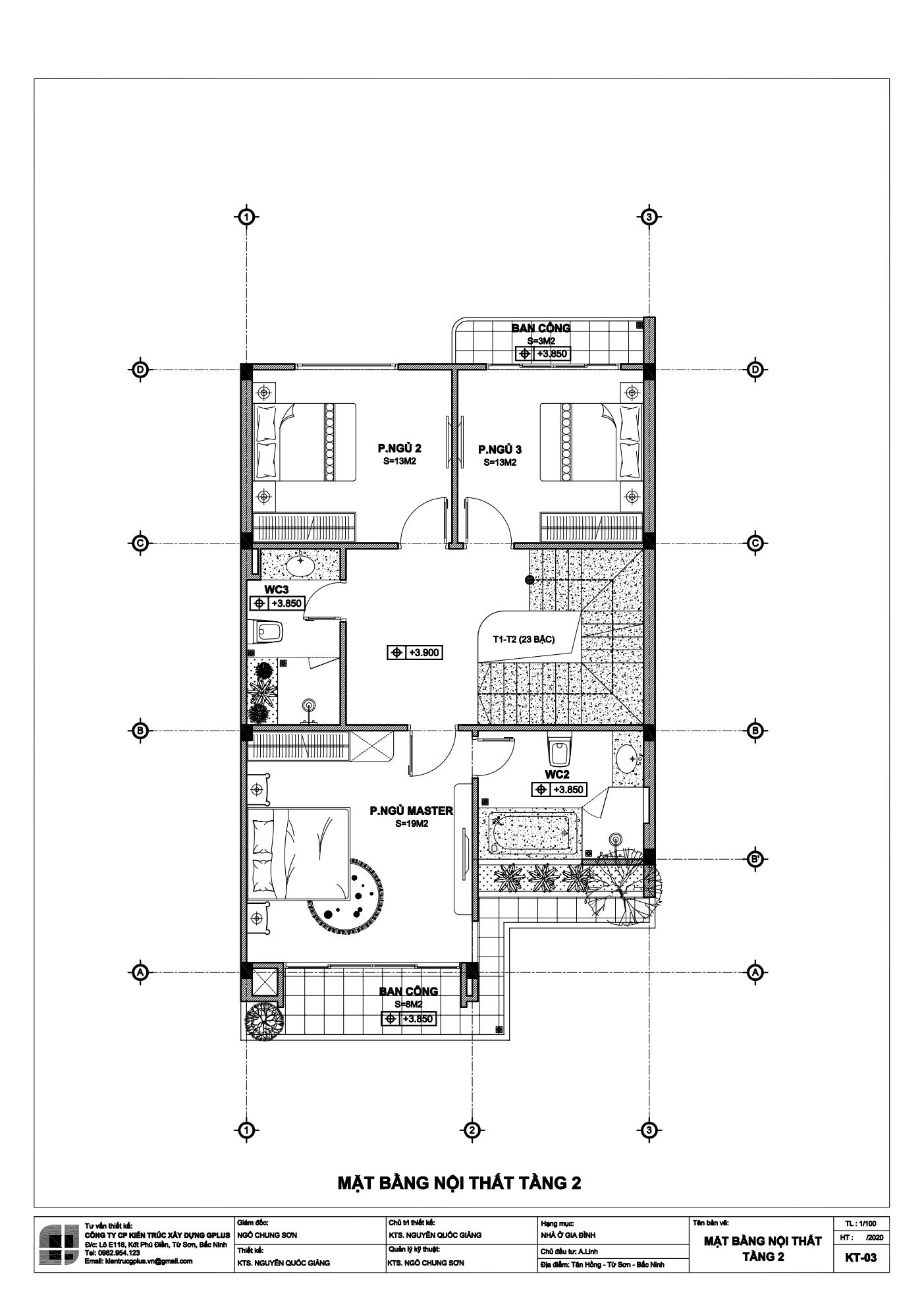
Nhà 3 Tầng được chia thành các không gian chức năng như sau :
– Tầng 1 : Không gian Gara để xe, Phòng khách, Phòng Bếp, Sân Sau và một WC nhỏ cho khách.
– Tầng 2 : Bao gồm 3 phòng ngủ, trong đó có một phòng ngủ Master với vệ sinh khép kín và ở ngay phía trước nhà, 02 ngủ phía sau sử dụng vệ sinh chung khá rộng, với vách kính tắm và tiểu cảnh trong khoang tắm. Phòng ngủ Master với view ra phía trước rất đẹp, ban công thoáng đãng, vệ sinh khép kín rộng có bồn tắm và vách kính tắm, không gian nhìn ra phía trước có rèm che và cây xanh.
– Tầng 3 : Là không gian phòng Thờ được đặt trang nghiêm phía trước, có ban công và nhìn sang sân thượng phía bên phải. Một nhà kho được bố trí phía trên của vệ sinh tầng 2, nhằm mục đích đảm bảo phong thủy cho không gian phòng thờ và là nơi cất giữ đồ không dùng đến, đồ cũ. Sân phơi được bố trí ở phía sau với máy giặt đặt tại sân phơi, có cửa ngăn cách lấy gió qua sân phía sau, và lấy ánh sáng từ trên mái.
Một công trình Nhà 3 Tầng quá tuyệt vời cho các cặp vợ chồng trẻ.
