Nhà Lô Phố 4 Tầng 6×14.5m được xây dựng với mục đích vừa ở vừa kinh doanh, lô đất với ưu thế là mặt tiền 6m khá rộng thuận lợi cho việc kinh doanh.
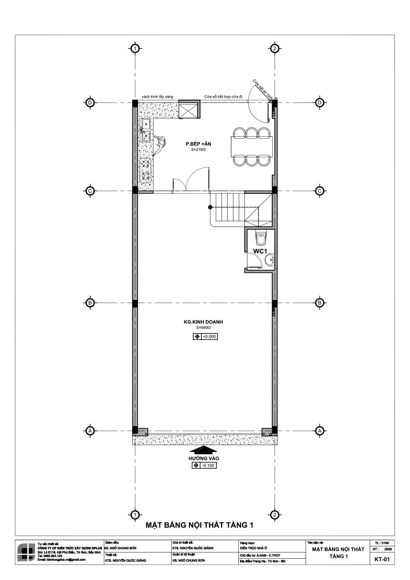
– Tầng 1 : Không gian kinh doanh được bố trí rộng rãi với diện tích 56m2, cầu thang được đặt theo hướng từ phía trong đi lên tạo khoảng không dưới gầm thang có thể tận dụng được cho mục đích kinh doanh,không gian bếp và ăn được thiết kế với diện tích 21m2, có cửa sổ và cửa đi thông thoáng ra phía sau.
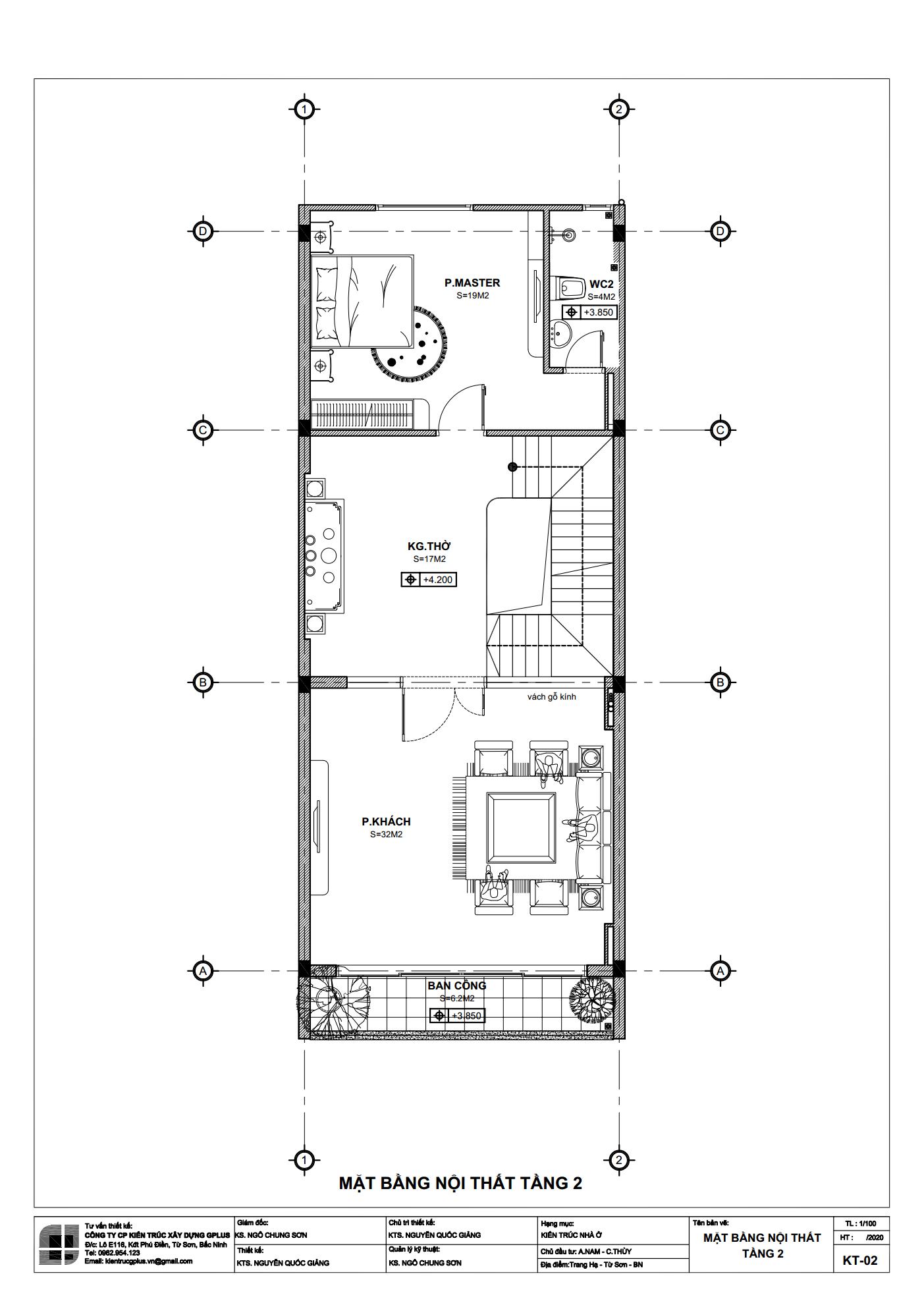
– Tầng 2 : Chiếu tới cầu thang tầng 2 là không gian của Phòng Thờ, cũng chính là không gian lưu thông kết nối Phòng Khách phía trước và Phòng Ngủ Master phía sau, Phòng Khách phía trước với diện tích 32m2, có khoảng nhìn ra ban công mở phía trước với cửa kính lớn, tạo nên một không gian thoáng đãng và lấy gió, ánh sáng tự nhiên rất tốt. Phòng ngủ Master đặt phía sau tạo được sự yên tĩnh khi nghỉ ngơi, với WC khép kín có vách kính tắm riêng biệt và lịch sự, cả phòng ngủ và WC đều có cửa lấy sáng và gió sang phía sau, đảm bảo thông thoáng và ánh sáng tự nhiên.
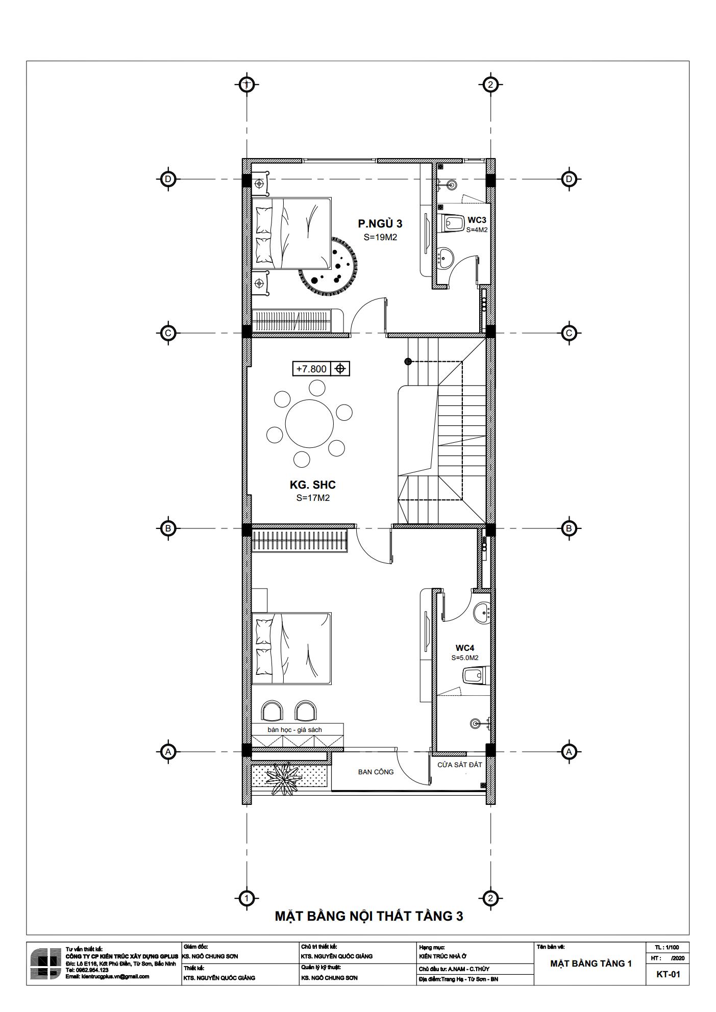
– Tầng 3 : Là không gian của 02 Phòng Ngủ cho con, đều có WC khép kín cho từng phòng, không gian lưu thông chung đi lại giữa hai phòng trở thành không gian sinh hoạt chung của tầng 3, với ánh sáng qua khoang giếng trời của thang bộ.
– Tầng 4 : Phía trước là không gian sân cảnh trồng cây xanh, rau sạch cuối tuần có thể ngồi uống trà, cafe rất thư thái, phía sau là không gian giặt phơi, đảm bảo thẩm mỹ, không gian chính giữa trở thành không gian tập thể thao mỗi buổi sáng, chiều.
Toàn bộ ngôi nhà là một sự kết nối hoàn chỉnh giữa các không gian kinh doanh và không gian sống, tất cả các chức năng sinh hoạt đều được đảm bảo, sự liên thông các không gian, kết nối các thành viên trong gia đình đều được chú ý tới.

Người đăng: Kiến Trúc G+ vào Thứ Năm, 2 tháng 7, 2020