Nhà Phố Hướng Tây 175m2
- Chủ Đầu Tư: Anh Công
- Địa Điểm: Phường Đồng Kỵ - Từ Sơn - Bắc Ninh
- Chủ Trì: KTS Nguyễn Quốc Giảng
- Hoàn Thành: 2020
Công Trình Nhà Phố Hướng Tây diện tích 175m2 là một công trình có diện tích mặt bằng khá rộng, với ưu thế là lô góc có hai mặt tiền, nhưng là công trình hướng tây, một mặt tiền hướng Tây Nam, một mặt tiền hướng Tây Bắc, toàn bộ công trình chịu cái nắng…
Công Trình Nhà Phố Hướng Tây diện tích 175m2 là một công trình có diện tích mặt bằng khá rộng, với ưu thế là lô góc có hai mặt tiền, nhưng là công trình hướng tây, một mặt tiền hướng Tây Nam, một mặt tiền hướng Tây Bắc, toàn bộ công trình chịu cái nắng hướng tây rất gay gắt. Chính vì vậy các KTS đã phải cân nhắc đưa ra các giải pháp tránh nắng và nóng cho công trình, làm sao đảm bảo công năng sử dụng nhưng vẫn thẩm mỹ cho công trình.
Công trình với :
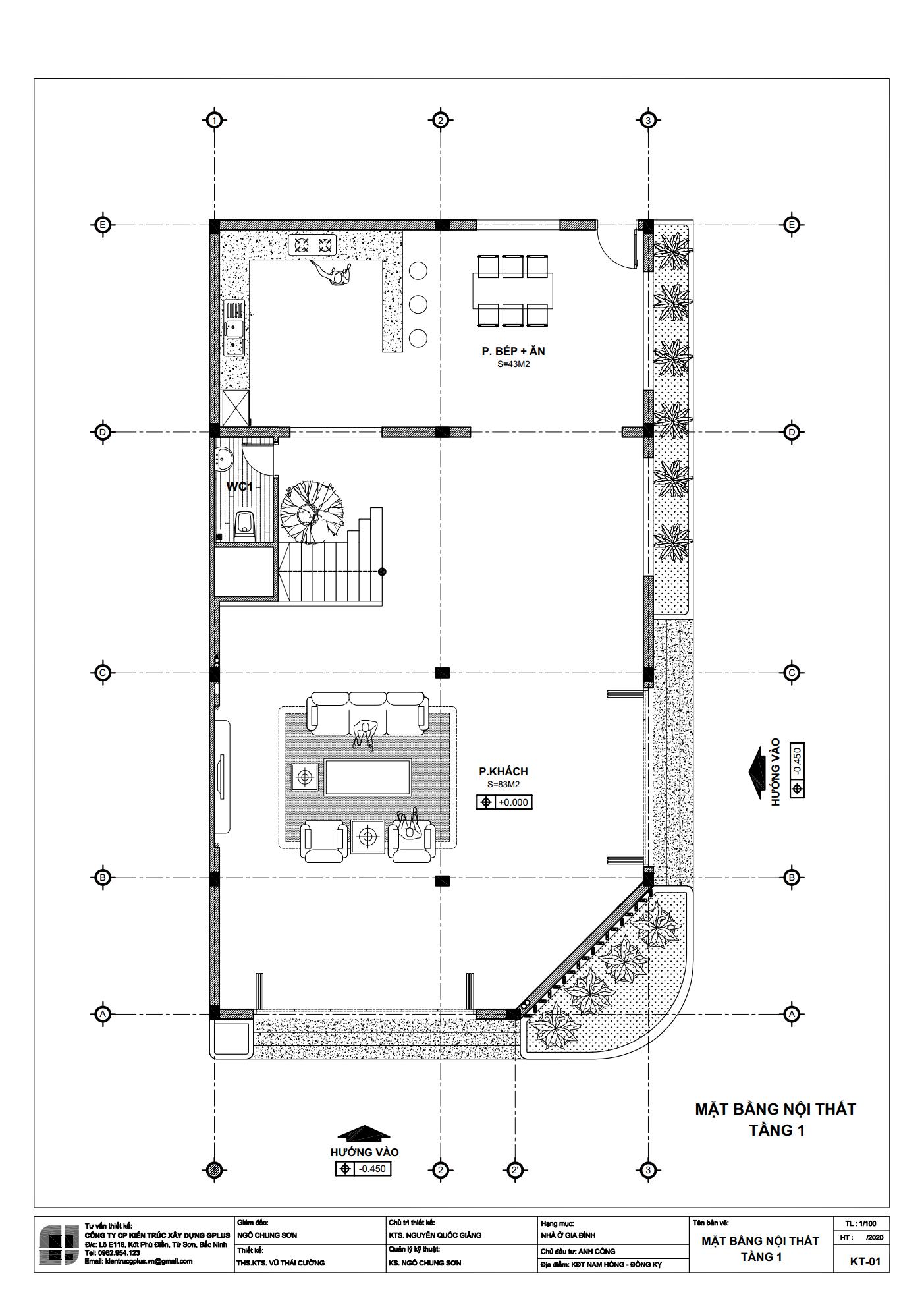
– Tầng 1 : Là không gian Phòng Khách rộng 83m2 sử dụng cho nhiều chức năng ngoài chức năng tiếp khách, hoặc khi có những sự kiện tập trung đòng người , vệ sinh chung được bố trí dưới gầm thang khá kín đáo và tế nhị, phía sau cùng là khu vực Phòng Bếp và Ăn rộng 43m2 có cửa đi xuống xưởng sản xuất ở phía sau.
– Tầng 2 : Là không gian của 03 Phòng Ngủ và Phòng Thờ, không gian tầng 1 và 2 được liên kết với nhau qua một không gian thông tầng, từ không gian Phòng Thờ phía trên tầng 2 có thể nhìn qua thông tầng xuống Phòng Khách ở Tầng 1. Phòng ngủ Master rộng 28m2 với khoảng ban công rộng phía trước, WC khép kín rộng 6.2m2 đầy đủ tiện nghi, Phòng ngủ thứ 2 cũng là một phòng khá đẹp rộng 21m2 với ban công và vệ sinh khép kín rộng và đầy đủ ánh sáng, một WC chung cho tầng được bố trí cạnh thang bộ cũng là WC dùng cho phòng ngủ thứ 3.
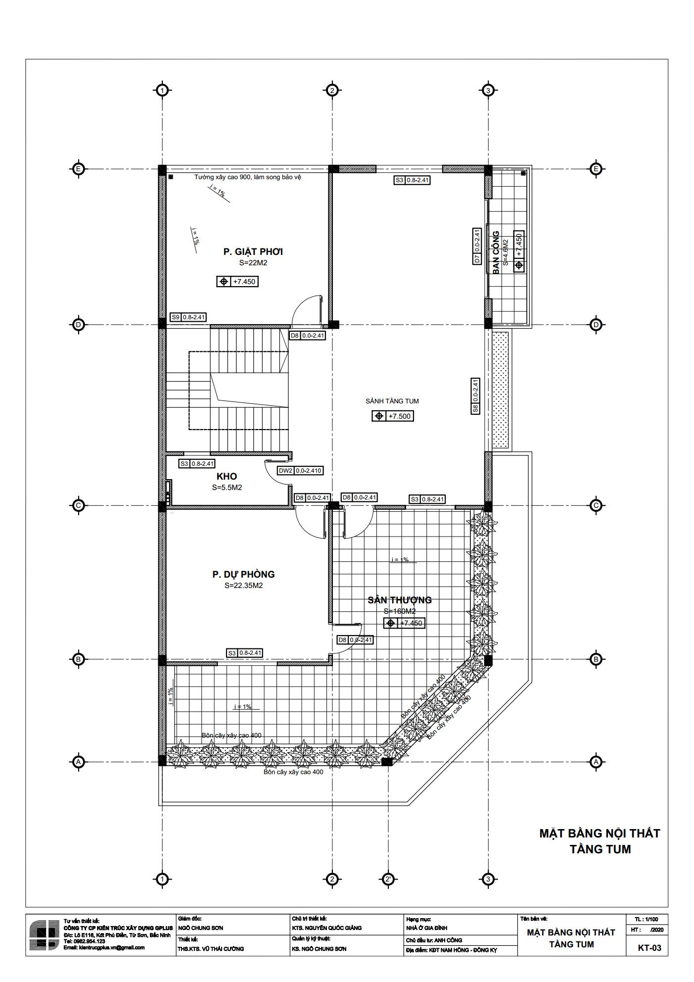
– Tầng 3 là không gian của sân phơi, sân cảnh và một không gian dành cho thể dục thể thao.
Công trình với diện tích khá rộng nên các không gian từ chung đến riêng đều có diện tích sử dụng tiêu chuẩn và rộng rãi. Tổng thể công trình tạo nên một không gian sống tiện nghi và thư thái.
